Vivienda entre medianeras en Puçol

VIVIENDA UNIFAMILIAR EN PUÇOL

Cliente: Privado

Servicio: Proyecto, Dirección Obra y Project Management

Fecha de proyecto: Abril-2007

Status: Finalizada

Situación: C/ Profesor Tomás y Valiente, 19 , Puçol

Provincia: Valencia

Tipo de edificación: Vivienda unifamiliar entre medianeras

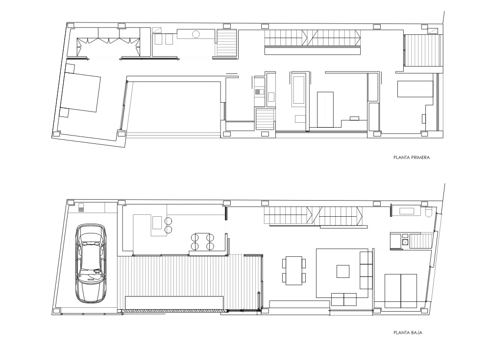
Volumétricamente la vivienda se resuelve con la superposición de 2 cubos de distinto tamaño sobre una base pétrea.

El cubo de dimensiones más reducidas lo ocupa el dormitorio principal, mientras que el resto de dormitorios y la sala polivalente se sitúan en el cubo más grande.

En planta baja, el acceso, la cocina y salón comedor, se articulan alrededor del patio que se entiende como el verdadero centro de la casa y por el contrario, en las plantas superiores, se aprovecha la mayor altura para abrir las vistas al paisaje.

Funcionalidad en la distribución de los usos, conjuntamente con el estudio de la luz y las vistas, han determinado el resto.