Vivienda aislada en Monte Picayo

VIVIENDA UNIFAMILIAR AISLADA EN MONTE PICAYO

Cliente: Privado

Servicio: Proyecto

Fecha de proyecto: 2012

Status: En proyecto

Situación: Urbanización Monte Picayo en Sagunto

Provincia: Valencia

Tipo de edificación: Vivienda unifamiliar aislada

Ambos miembros de la pareja propietaria de la vivienda tienen profesiones vinculadas al mundo del arte y la casa nació como una gran escultura integrada en el terreno, como un juego de contundentes volúmenes bajo la luz, contraste de colores y materiales, contraste de lo tectónico de la piedra con las grandes cristaleras de líneas puras y simples que abren la vivienda al paisaje.

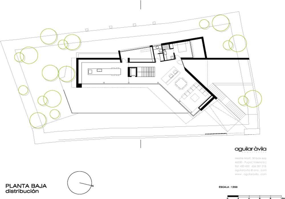
En el centro de la vivienda se ubica la escalera, la cual articula la circulación y la distribución de las estancias dentro de la vivienda.

En el interior, en planta baja destaca la fluida conexión entre los espacios, la continuidad entre las estancias, en planta primera, donde se sitúan las habitaciones, se mezcla la privacidad y la apertura al paisaje.